イベント情報

event

イベント情報

【完成見学会 at 大阪狭山市大野台】11/1(土)~16(日) 動線も収納も無駄なし。スマートに暮らす家族の家

イベント概要

期間
2025年11月1日(土)~11月3日(月・祝),11月8日(土)~11月9日(日),11月15日(土)~11月16日(日)
開催時間
10:00~17:00
開催場所
大阪狭山市大野台

イベント内容

動線も収納も無駄なし。スマートに暮らす家族の家

※写真はイメージです。

 

大阪狭山市大野台にて完成現場見学会を行います!

コンパクトでも動線と暮らしやすさが秀逸なお家です。ぜひ見学会でご体感ください。

 

 

見どころポイント

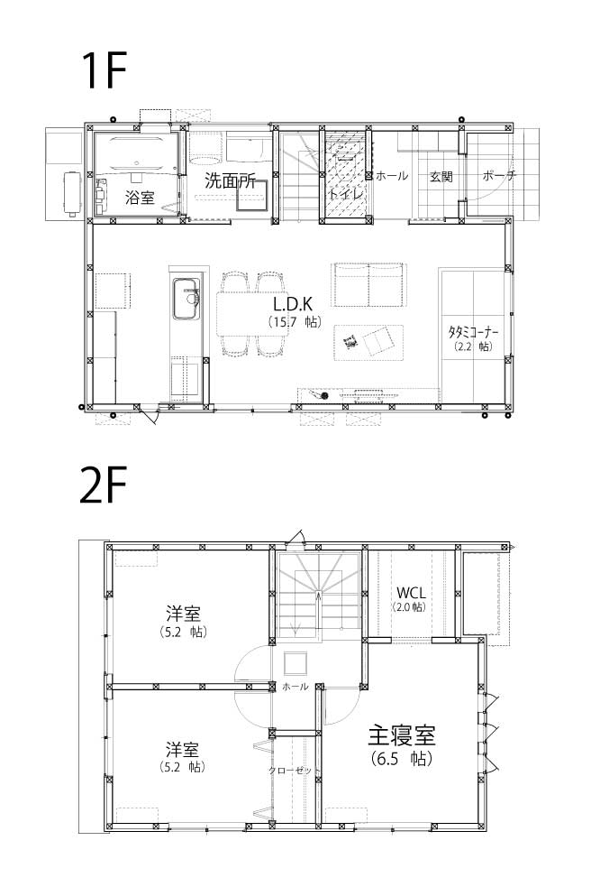
① 回遊できる水まわり動線

玄関から洗面所・浴室へ一直線につながる動線で、帰宅後すぐの手洗いや入浴がスムーズ。家事や育児の時短にも効果的です。


② LDK+タタミコーナーのくつろぎ空間

15.7帖のLDKに、2.2帖のタタミコーナーが連続。小さなお子様の遊び場や昼寝スペース、来客時の簡易客間など多目的に使えます。


③ キッチン中心の家族目線設計

キッチンからリビング全体を見渡せる配置。料理中も家族との会話が弾み、子どもの様子も自然に見守れる安心感があります。


④ 2階のプライベート空間とWCL

6.5帖の主寝室に隣接する2帖のウォークインクローゼットで収納力も十分。洋室2部屋(各5.2帖)は子ども部屋や書斎としても活用しやすいレイアウトです。


⑤ シンプル&無駄のない生活動線

玄関→LDK→洗面→浴室と自然に流れる生活動線により、掃除や家事の負担を軽減。限られた面積を最大限に生かした、スマートな設計です。

 

 

 

 

※実際にご見学いただける物件を元に作成したイメージパースです。

 

完成見学会は、実際に建てられたばかりの「等身大の家」を見学できる絶好の機会です。
住宅展示場のモデルハウスとは違い、現実的な家づくりのヒントがたくさん詰まっています。

 

完成見学会とは

完成現場見学会は、施主様が実際に建てられたお住まいを、お引き渡し前に見学できるイベントです。モデルハウスでは分からない、現実的な広さや間取り、設計の工夫、自然光の取り入れ方などを「実物大」で体感できます。

 

家づくりをご検討中の方には、暮らしのヒントが満載の完成見学会。「この床材の色がいい」「こんなキッチンにしたい」など、具体的なアイディアが膨らみ、理想のイメージが明確になります。見学会で見られるお住まいごとに、お施主様がこだわった収納や便利な家事動線、コンセントの位置など、先輩の「なるほど!」という工夫を直接見て参考にできるのも完成見学会の魅力です。

リアルなお住まいに触れることで、家づくりはもっと楽しく、ワクワクするものに。ぜひお気軽にご来場ください。

 

 

リアルな広さや暮らしのイメージが掴める4つのポイント

  1. 感覚でわかる「リアルな広さ」
    「この8畳は思ったより広いな」など、図面や数字だけではピンとこない部屋の広さ、天井の高さ、廊下の幅を、ご自身の身体で直接確かめることができます。
  2. 写真では伝わらない「リアルな眺め」
    「このキッチンからリビングはこう見えるのか」といった、特定の場所に立った時のリアルな眺めや空間のつながりを確認できます。
  3. 暮らしの動きを「シミュレーション」
    キッチンに立って料理する様子や、ソファを置く場所、家族が過ごす様子などを想像することで、具体的な家事動線や生活動線をシミュレーションできます。
  4. 未来の我が家を「具体的にイメージ
    これらの体験を通じて、漠然としていた理想の暮らしが「自分たちがそこで生活する姿」として、ありありと具体的にイメージできるようになります。

 

 

みなさまのご参加お待ちしております♪

 

 

【ご来場プレゼント進呈条件】

初めて来場頂くお客様1組様につき、QUOカードPay*5,000円分を1回限りで進呈させていただきます。
*『QUOカードPay』とは、スマートフォンで使えるデジタルギフトです。 専用のアプリが不要で、メールなどで送られてきたURLを開くだけで、簡単にご利用いただけます。
1.ご夫婦またはご家族でのご来場の方
2.お一人でご来店の場合は、2回目のご来店(事前審査申込時)にて進呈いたします
3.施工エリアにて前向きにお家づくりを検討されていると弊社スタッフが判断した方
さらに、次回(2回目)来場時に銀行の事前審査申込で+QUOカードPay 5,000円分に加え、お米(2キロ)をプレゼントいたします。

合計でQUOカードPay 10,000円分+お米2キロのプレゼントとなります。

 

【キャンペーンに関する注意事項】

※複数店舗へのご来場でも、1回限りの進呈となります。
※オンライン面談は対象外となります。
※担当者からの電話連絡をもって、受付完了となります。
※新築をお考えの方のみとなります。(リフォームは対象外)

当日および1日前に、ご来場予約のお客様へ


当日および1日前にご来場のお客様は、2回目の来店時(事前審査申込後)にQUOカードPay 10,000円分+お米2キロを進呈させて頂きます。

このイベントに関する
お問い合わせはこちら

▼Quoカードのプレゼントをご希望の方は以下のアンケートにお答えください

    お問い合わせ内容をご入力のうえ、送信してください。
    当フォームにご入力いただいた情報は、SSL技術により暗号化されて送信されます。
    また、個人情報は当社プライバシーポリシーに基づき、大切に扱わせていただきます。

    ご来店希望日時必須
    参加人数必須
    お名前必須
    フリガナ必須
    電話番号必須
    メールアドレス必須
    郵便番号必須

    自動で住所が入力されます

    ご住所必須
    知ったきっかけ必須
    ご質問・ご希望任意
    個人情報の取扱いについて必須

    ardhl.comのドメイン指定受信の設定をお願いいたします。

    お問い合わせいただいたお客様には、自動で受付確認メールを送信しております。
    受付確認メールを受信されていないお客様は、携帯電話の受信設定により弊社からのメールを受信拒否している恐れがございますので、ご確認ください。

    Ard’s Contents